Community Health and Wellness Center
A modern, inclusive facility serving recreation, fitness and health activities and community programs for residents of all ages and backgrounds throughout the region.
CHWC Update: April 22, 2026
The week of May 18, 2026 south parking lot grading and W. 98th Street utility work, including sewer, water and storm drain installation, will begin. Utility work will require some street and lane closures and should be done by the week of June 4. Parking lot work will involve light and heavy equipment and should be completed by the week of September 28.
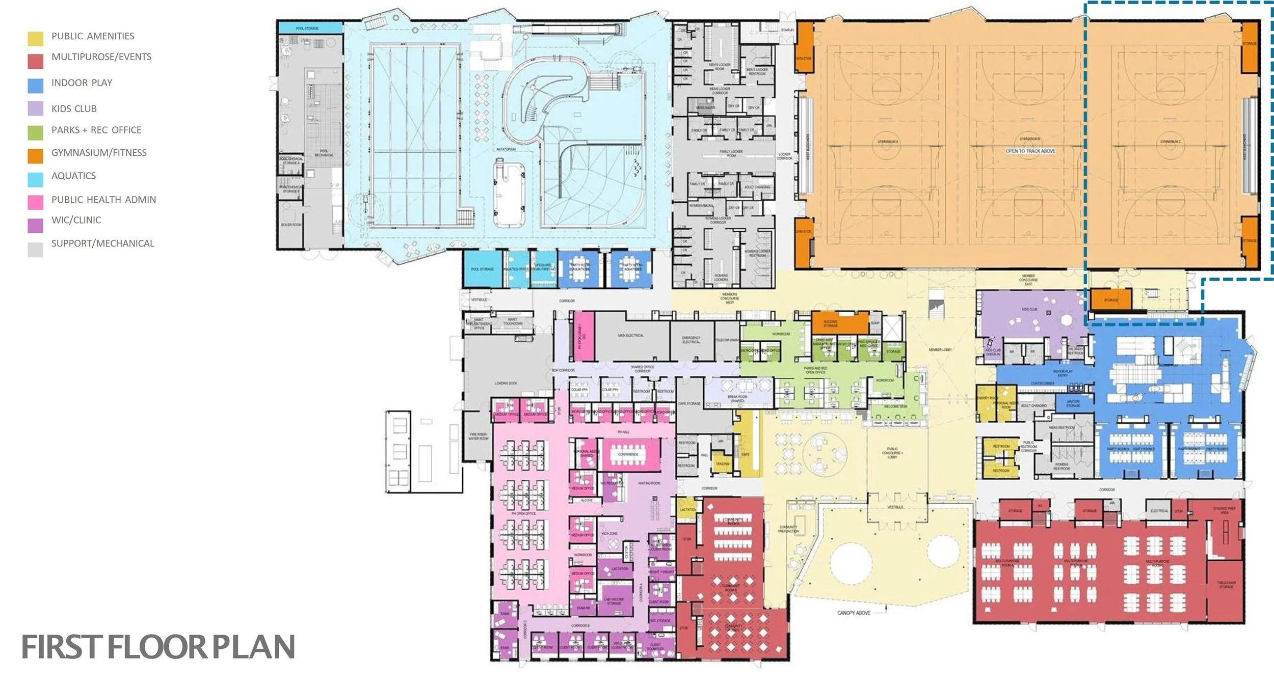
We’re also excited to report the return of the third gym! Through a combination of strategic planning and favorable market conditions, the third gym, which was part of the original design, has been added back to the facility while remaining within the approved budget.
See the Project Updates section below for more details.
Skip to: Project Updates | Public Engagement | The Plan | The Facilities | The Need | The Cost | FAQ | Media & Resources | Contact Us
Project Updates
Visit this page often for updated project information.
April 2026: Utility work, parking lot grading and the return of the third gym!
Since the groundbreaking in October, footings, foundation walls, underground mechanical work and first-floor precast wall panels are largely complete. Construction crews are installing structural roof and floor steel, pouring concrete decking and raising wall panels for the facility’s second level. Work on the underground pool structure will begin soon and glazing and installation of floor-to-ceiling windows will commence this summer. As the exterior of the building continues to come together, construction will shift to interior work.
The week of May 18, 2026 south parking lot grading and W. 98th Street utility work, including sewer, water and storm drain installation, will begin. Utility work will require some street and lane closures and should be done by the week of June 4. Parking lot work will involve light and heavy equipment and should be completed by the week of September 28.
We’re also excited to report the return of the third gym! Through a combination of strategic planning and favorable market conditions, the third gym, which was part of the original design, has been added back to the facility while remaining within the approved budget. It will be located on the northeast section of the building. Adding the third gym back to the facility is expected to improve the project’s operating bottom line. Some key elements that allowed the third gym to be added back include:
A dedicated fiscal contingency allocated for tariffs and potential cost escalation was not fully utilized.
Favorable bidding conditions in a competitive market resulted in lower-than-anticipated construction costs.
Architect refined the design to align with the approved budget while maintaining a high-quality, functional, and visually appealing facility.
Strong coordination between the City and design and construction team including JE Dunn, HGA and Tegra supported informed design decisions and efficient project delivery, contributing to overall cost control.
March 2026: Video update
3/26: Watch this short reel for the latest video update about the Community Health and Wellness Center.
January 2026: Going vertical!
1/22 Update: Exterior work completed through January 22 includes excavation, forming, pouring and waterproofing building footings, foundation walls and piers in various work areas.
1/15 Update: Construction activity continues to ramp up in the coming weeks as the project moves into its next phase. Work on underground footings for the pool mechanical area began the week of January 12. This will be followed by foundation work at the main entry. A crane will soon arrive at the construction site in preparation for installing the facility’s precast wall panels, which are expected to arrive beginning January 26. This will necessitate periodic site access by semi-trucks delivering materials. The beginning of structural steel installation is anticipated in early February and will involve additional crane activity as the building starts to take shape. Watch this short video showcasing the progress.
-
December 2025: Construction ramping up.
12/29 Update: Exterior work completed in December includes:
Excavated footings in work areas 1, 2, 3 and 4.
Formed, tied rebar, and placed concrete for footings, foundation walls and piers in work areas 1, 2, 3 and 4
Waterproofed and backfilled all completed footings, foundations and piers.
12/12 Update: Footing installation is progressing steadily, generally moving clockwise around the new building footprint. Crews are working in a continuous sequence where excavation is immediately followed by forming, rebar installation and concrete placement via a large mobile pump. Waterproofing is being applied to the foundations shortly after the pours are complete. Looking ahead to January, precast panels will begin arriving on site to be hoisted into place, marking the start of the building’s shell construction.
November 2025: Construction commences.
11/21: Demolition of the former Creekside Community Center structure is complete. The project has moved into the construction phase. Excavation, concrete foundations, and below-grade waterproofing work is proceeding, with the first concrete pour successfully completed on 11/20. The next six weeks will focus on getting the foundation completely set in preparation for precast panel erection starting in early January 2026.
11/7: Site preparation work is ongoing as JE Dunn continues grading and ensuring the site is ready for the next phase of construction. Foundation demolition, soil turnover and remediation activities are in progress. Construction fence revisions begin late the week of November 10 and footing and waterproofing work is scheduled to begin the week of November 17. Over the next several months the focus will shift to excavation and form work, followed by regular concrete pours as the building foundation begins to take shape.
October 2025: Groundbreaking
10/13: Project update to City Council
10/14: Formal groundbreaking ceremony.
10/27: Demolition of existing building begins.
Questions about construction? Watch this brief video of a September 25 construction meeting and presentation.
-
September 2025: Commence Construction documents.
August 2025: Project update to City Council (8/4), Planning Commission meeting (8/7), City Council public hearing with Development Review Committee (8/25), Issue 100% design development (end of month).
July 2025: Accessibility Focus Group with COED, Creative Placemaking meeting, Planning Commission meeting (7/24).
June 16, 2025: Logan Lodge, 9930 Logan Ave. S. opens for programs for adults ages 50+.
May 30, 2025: Creekside Community Center closed.
April 14, 2025: Project update to City Council.
April 2, 2025: Community engagement summary report posted (see Engagement section below for link).
February 24, 2025: Project update to City Council.
February 8, 2025: Community engagement during Indoor Farmers Market at Bloomington Civic Plaza.
Review draft designs and provide feedback online at Let’s Talk Bloomington through March 1, 2025
-
September 16, 2024: City Council approves Feasibility Study Final Reports and project transition to Schematic Design Phase.
August 26, 2024: Project update presentation to City Council.
July 2024: JE Dunn Construction selected as Construction Manager.
May 28 - June 30, 2024: Community Health and Wellness Center survey conducted.
May 9, 2024 City staff met with HGA Architects for a Kickoff Workshop to review the process and schedule, establish overall project vision and goals, discuss public engagement strategy, review program and space needs, and analyze the site.
May 6, 2024: HGA Architects selected as the architect and engineer for the new Community Health and Wellness Center. Description text goes here
Want to see previous council updates or other video stories about the Community Health and Wellness Center? Visit the Media & Resources section below.
Draft Renderings - Spring 2026
Floorplans and Site Plan - April 2026
Click to enlarge
Feasibility Study and Business Plan
-
Feasibility Study Goals:
1. Engage the Bloomington Community, leadership and stakeholders to begin pre-design of a community health and wellness center.
2. Build a shared vision for programming, space and operational needs.
3. Provide guidance to avoid duplication of services and amenities within the local market, and identify the ideal services that may be missing in the local market. 4. Produce a statistically valid research survey that helps determine needs and interests in facility amenities and pricing strategies, and to compare that to regional and national best practices.
5. Explain the types of programs needed to assist City leadership in allocating resources to meet current and changing needs of Bloomington residents.
-
The Feasibility Study work included:
• Alternative Provider Market Analysis.
• Operational analysis of similar service providers, including Twin Cities metro area community centers.
• Stakeholder interviews, including (but not limited to) City Council, PARC commission, senior leaders, City staff from Public Health and Parks and Recreation, City executive leadership staff.
• Statistically valid survey conducted by ETC institute starting May 13, 2024.
• Community Survey running May 28 - June 30, 2024, linked on Bloomingtonforward.org and promoted extensively, including in the June Bloomington Briefing.
• Identification of core programs and facility/core program space needs.
• Operational analysis and financial plan.
• Facility pricing strategy.
• Vendor collaboration. PROS Consulting, the Feasibility Study Consultant, will work directly with HGA, the project architect and engineer, through August 2024.
-
Feasibility Study work included:
CHWC Feasibility Study Business Plan
Alternative Provider Market Analysis: Chapter 2.3
Key Leadership and Focus Group Interviews: Appendix B
Financial and Funding Plan/Pro-forma
CHWC PROS Demographic and Trends Report
Demographic and Socioeconomic Analysis: Chapter 2.2
Trends Analysis and Market Segment Determination
See pages 7 and 24-29 for Guiding Principles
See page 39 for Community Engagement Priorities
Construction Photos
Public Engagement
-
Feedback from residents continues to shape the Bloomington Forward plan. As we move forward with the design phase of the projects in 2024, the City will work to answer questions and provide residents with information.
The City of Bloomington is committed to keeping you informed on the timeline, features and benefits and construction progress of this project.
We are also committed to involving you in the process by providing ongoing and inclusive opportunities for public input into the decisions that are made over the lifecycle of the project, including (but not limited to) facility amenities, programming, and pricing.
-
Using the International Association of Public Participation engagement framework, we will:
• Design engagement opportunities to involve residents, stakeholders and other interested parties.
• Ensure you have a sense of connection to the project.
• Provide follow-up to engagement activities that reflects how your input will be used.
-
Monday, October 13, 2025: Community Health and Wellness Center Update to City Council
-
Monday, August 4, 2025: Community Health and Wellness Center Update to City Council
Thursday, August 7, 2025: Planning Commission Meeting
At this meeting, the Planning Commission will hold a public hearing to gather input and discuss several proposed actions related to the project. Specifically they will review the following items:
Changing the Comprehensive Plan to update the land use designation of two of three properties on the site from High-Density Residential to Public Use.
Rezoning the property to allow for more flexible development through a Planned Development Overlay. This includes changing two of the three parcels from multi-family to single-family zoning.
Approving development plans for the proposed 106,000-square-foot Community Health & Wellness Center and potential future expansion.
The Commission will not make final decisions on these items but will review the proposals, hear public feedback, and eventually make a formal recommendation to the City Council.
Monday, August 25, 2025: City Council public hearing with CHWC Development Review Committee.
At this meeting, the City Council will hold its own public hearing to listen to community feedback and review the recommendation from the Planning Commission. The City Council will then vote on whether to approve or deny the requested actions, including the Comprehensive Plan Amendment, Rezoning, Development Plans, and Platting.
-
Thursday, July 24, 2025: Planning Commission Meeting
At this meeting the Planning Commission will hold a public hearing to gather input and discuss several proposed actions related to the project. Specifically they will review the following items:
Changing the Comprehensive Plan to update the land use designation of two of three properties on the site from High-Density Residential to Public Use.
Rezoning the property to allow for more flexible development through a Planned Development Overlay. This includes changing two of the three parcels from multi-family to single-family zoning.
Approving development plans for the proposed 106,000-square-foot Community Health & Wellness Center and potential future expansion.
The Commission will not make final decisions on these items but will review the proposals, hear public feedback, and eventually make a formal recommendation to the City Council.
-
While we are approaching 100% design development for the Community Health and Wellness Center, your input is still important.
The overall design and floor plans are largely established and meet or exceed requirements of the Americans with Disabilities Act (ADA). But we value your insights to help ensure the CHWC is as inclusive, welcoming, and user-friendly as possible for all members of our community.
Please complete the brief Design Development Accessibility Survey at Let’s Talk Bloomington, to provide input on important accessibility-related details of the new facility.
Survey closed July 20, 2025.
-
CITY COUNCIL UPDATE
Monday, April 14: Community Health and Wellness Center project update for Bloomington City Council.
Click the date link above to go to the City of Bloomington website where you’ll find meeting details when they become available, including agenda and information packet.
-
February 8, 9 a.m. - 1 p.m.: Indoor Farmers Market at Bloomington Civic Plaza, 1800 W. Old Shakopee Rd.
HGA Architects and City staff are in the process of creating a draft design of the new Community Health and Wellness Center.
You can review and comment on the draft concepts in the Black Box Theater during the Indoor Farmers Market.
Can’t attend? Don’t worry. February 7 - March 1 you can review concepts and provide comments online at Let’s Talk Bloomington.
February 24: Update to City Council
-
CITY COUNCIL UPDATE
Monday, September 16, 2024: Community Health and Wellness Center Update
COMMUNITY CELEBRATION
Saturday, September 28, 2024, 4 - 7 p.m.
Help move Bloomington forward and celebrate the possibilities of the new Community Health and Wellness Center during this free event at Creekside Community Center, 9801 Penn Avenue South.
Live music from The Tuxedo Band 4:30 - 6 p.m.
California Dip & Eat food truck.
Frozen treats from the Icicle Tricycle.
Games and activities in the park.
Learn more about the new center’s possible programs, services and amenities.
Get flu shots and helpful information and resources from the Bloomington Public Health Mobile Health Hub.
Mindful weaving activity from artist Katie Ross.
-
CITY COUNCIL UPDATE
Monday, August 26, 2024: Community Health and Wellness Center Update
Engagement & Update Opportunities
COMMUNITY HEALTH AND WELLNESS CENTER ENGAGEMENT SUMMARY
Review this comprehensive summary of public engagement events and comments shared by community members during the schematic design phase of the new Bloomington Community Health and Wellness Center project.
CHWC Schematic Design Phase Engagement Summary: April 2, 2025
The Plan
Enhancing health, fitness and community connections
The new Community Health and Wellness Center will support a wide range of recreational and fitness activities and community programs that residents throughout our region enjoy. The new center will replace the existing Public Health and Creekside Community Center buildings and be located on the current Creekside site at 9801 Penn Ave. South.
A new Community Health and Wellness Center will provide access to health and wellness programs for our community, including immunizations, nutrition education, pregnancy and parenting education, older adult health resources and more. A new facility will also support community health initiatives and mobilize residents and partners to improve the health of all residents.
Potential Features
At approximately three times larger than the current public health and Creekside facilities, the new Community Health and Wellness Center will provide more flexible gathering spaces and support activities for all ages and backgrounds, including older adults, families and those with disabilities. Potential facility amenities may include:
Gymnasiums with bleachers
Walking/jogging track
Indoor playground
Supervised child play area
Exercise spaces and fitness studios
Multi-purpose rooms for community activities and events
Senior program and activity spaces
Pool with family locker rooms
Public health program, exam and counseling spaces
Offices for Public Health and Parks & Recreation Departments
All items subject to change. Extensive community engagement will take place to help guide final decisions on features and amenities.
Timeline
February - March 2024: Issue RFP and accept and review bids for architect & engineer.
February - July 2024: Conduct feasibility study.
April 2024: Interview architect & engineer candidates and make final selection.
May 2024: Selection of HGA as architect & engineer.
May 2024: Issue RFP and accept and review bids for Construction Manager.
June 2024: Interview Construction Manager candidates.
July 2024: JE Dunn selected as Construction Manager.
2024-2025: Community engagement and schematic design.
Schematic Design: September 2024 - February 2025
2025: Complete engagement, design, and bid for construction.
Design and development schedule: February - July
Transition of Creekside programs to other City facilities: June
2025-2026: Construction.
Site work and demolition: August - October
Construction begins: October
2027: Grand Opening.
all schedules subject to change
Predesign
Gather pre-existing information and data to begin the project
Identify opportunities and challenges
Define scope, program, begin budget and schedule discussions
Develop engagement strategies
Schematic Design (30% design)
Create concepts/vision
Incorporates engagement feedback, most flexible part of the design process
Basic ideas, form and function
Preliminary drawings, sketches or renderings may be created
Preliminary cost estimate
Confirm sustainability goals
Team
Staff Contact
Leah Hughes, Deputy Director, Parks and Recreation - forward@bloomingtonmn.gov
Architect/Engineer
Construction Manager
Owner’s Representative/Project Manager
Planning and Design Phases
Design Development (60% - 90% design)
Refined with more detailed drawings and cost estimates
Incorporates feedback, refines and defines design
A vision takes shape into drawings
Product selection begins
Construction Documents
Design finalized
Complete set of construction drawings and specifications prepared
Construction - We are here!
Bidding process, hire contractors
Construction schedule developed
Build per the design
Share status updates with community
The Facilities
Creekside Community Center and Public Health offer a wide range of health and recreation services to residents of Bloomington and across the Twin Cities region.
Who does Creekside and Public Health Serve?
-
Creekside Community Center offers a variety of programming from recreation to arts and crafts. The center received approximately 110,000 visits annually prior to the pandemic.
The majority of programs and events at Creekside are geared towards adults ages 50 and above, and include art classes, needlepoint, leatherworking, quilting, card playing groups, a book club, a writers club, yoga, a walking club and other low-impact fitness, music groups, games and other recreation opportunities.
Creekside is undersized to accommodate current community center program demands in Bloomington.
-
Who does Public Health serve?
Bloomington Public Health provides health services to a population of nearly 180,000 residents across Bloomington, Richfield and Edina. Additionally, Public Health serves people who work in and visit these communities. This tri-city relationship has been in place for 45 years, since 1977.
Public Health provides direct services to individuals and families, and promotes data-driven policy and systems change informed by its client-based work.
Staff serve everyone in the community with an emphasis on underserved populations. This includes individuals with less resources and those with functional or access needs. It also includes populations who have historically experienced health disparities due to structural racism, including immigrants and refugees, and individuals from our Black, Indigenous and People of Color (BIPOC) communities. For example, 86% of the clients of the Bloomington Women, Infants and Children (WIC) program in 2022 were from BIPOC communities.
Public Health remains committed to promoting, protecting and improving the health of all, with a focus on reducing health disparities and advancing racial equity.
Did You Know?
From 2018 to 2021, Bloomington Public Health served thousands of individuals outside of its service area, including:
• 2,013 individuals who received flu shots.
• 172 individuals who received regular immunizations for school or work.
• 6,915 individuals who received COVID-19 vaccines.
The Need
The Creekside Community Center and Bloomington Public Health facilities have served the community well for over 60 years. However, neither can effectively accommodate current program and service demands and are limited in how they can be remodeled or expanded. A larger, more modern Community Health and Wellness Center will meet the community’s needs for many years to come.
These videos provide a detailed look at the significant limitations of our city’s current public health and community center facilities.
In 2016, a resident and stakeholder task force studied Creekside Community Center and recommended building a new facility to provide the amenities, gathering spaces and activities necessary to serve the community.
In 2022, the City conducted a scientific survey of residents to gather feedback about community investment priorities, including a new community center, modernization of Bloomington Ice Garden, and improvements to parks, trails, and recreation facilities.
76% of respondents supported constructing a new community center
Bloomington’s population increased by more than 8% between 2010 and 2020, creating greater demand for investments that support health, wellness, athletics and recreation.
The Cost & Funding
The City will invest $101.8 million to build the new Community Health and Wellness Center to replace the existing Public Health and Creekside Community Center buildings. The new facility will be located on the current Creekside site at 9801 Penn Ave. South.
The new Community Health and Wellness Center will be funded through a local sales tax approved by voters in November 2023. The half-percent sales tax will be in effect April 1, 2024 and will generate $101.8 million for the project. The State of Minnesota will contribute $1.8 million for pre-design work.
Spreading the cost among residents and nonresidents
In May 2023, Bloomington received legislative authorization to present voters with a referendum to fund the investments included in the Bloomington Forward plan via a half-percent local sales tax. Approved by Bloomington voters on November 7, 2023, an estimated 65% of the tax will be paid by nonresidents, according to research by the University of Minnesota. That means nonresidents will contribute an estimated $66.1 million toward the new facility.
How Does The Sales Tax Work?
The local half-percent sales tax will be applied the same way as the state sales tax. The tax amounts to a half-cent for every $1 spent. For example, a $10 purchase will cost an additional 5 cents.
The local sales tax has the same exemptions for purchases as the state sales tax. These include groceries, clothing, prescription and over-the-counter drugs, feminine hygiene products and baby products. Sales of motor vehicles and boats are also exempt. For more information, view this list of taxable items and this list of most nontaxable items from the Minnesota Department of Revenue.
Collections from the local sales tax will be used to make bond payments to finance the project for up to 20 years. The tax will expire when the bonds for the project are paid off. This approach allows current residents to take advantage of the improvements while the bonds are being repaid.
Did You Know?
The average cost of the half-percent sales tax for Bloomington residents will be approximately $100 per household each year, or $8.33 per month.
For more information about the local option sales tax, visit blm.mn/sales-tax.
Frequently Asked Questions
Get answers to common questions about the Community Health and Wellness Center project here!
-
Yes, the new community health and wellness center is part of a voter-approved citywide referendum that went through extensive community outreach and engagement and ultimately, was approved by Bloomington voters in November 2023.
The location of the new center was voted on in 2023 by City Council and included in the referendum education campaign and language. Bloomington residents had many opportunities to share their opinions about the project with City staff and the City Council at 19 public engagement events and numerous City Council meetings before the voters weighed in on whether they wanted a new community health and wellness center on the current Creekside Community Center site at 9801 Penn Ave.
-
No formal offers were made to property owners. In the earlier stages of the Community Health and Wellness Center project, the City evaluated possible voluntary sales of properties. The City’s consultant reached out to some property owners on Newton and Morgan avenues to gauge their interest in selling their properties. During the design process for the planned community health and wellness center, the size of the facility was reduced. Therefore, additional land was not required as part of the construction of the project.
-
The proposed parking for the community health and wellness center does not violate City Code. There will be sufficient parking. The City undertook a parking study to determine the number of parking spaces needed for the community health and wellness center. Parking demand for the redevelopment was estimated based on similar nearby sites and the ITE Parking Generation Manual. The results showed that the number of proposed on-site parking spaces slightly exceeds what is needed for the building. The reduction of off-street parking when supported by a parking study is explicitly permitted as part of a planned development. (see § 21.301.06(e)(5))
-
The site plan for the community health and wellness center focuses on a connection to nature and natural areas. Those natural elements include a green parking plan with natural stormwater basins and native plants and trees serving as natural parking medians. Additionally, Nine Mile Creek/Harrison Park Picinic grounds is a 0.5 mile walk from the facility’s location. Civic Plaza (greenspace and amphitheater) is a 0.4 mile walk and Moir Park is a 0.7 mile walk.
Bloomington prides itself in the amount of green space it has to offer residents, the national median for percentage of a city used for parks is 15%. Bloomington is around 36% of city land used for parks and green spaces.
-
The City will build a new Community Health and Wellness Center to replace the Bloomington Public Health and Creekside Community Center buildings, which were built in the 1960s and are too small and outdated to serve the growing and evolving needs of residents.
A new Community Health and Wellness Center will strengthen access to health and wellness programs for our diverse region. The new facility will more effectively support public health services including immunizations, nutrition education, pregnancy and parenting education, older adult health resources and more.
Further, the new center will provide flexible gathering spaces and activities for community members of all ages and backgrounds, including older adults, families and those with disabilities.
-
The Community Health and Wellness Center would support a wide range of recreational, fitness and health activities. Since it would be significantly larger than the current Creekside and Public Health buildings combined, more recreational amenities could be added. Possible amenities include gymnasiums, a walking track, pool, indoor playground, multi-purpose rooms, and exercise spaces. There will be a significant amount of public engagement to inform the design and use of the facility.
-
Creekside Community Center, 9801 Penn Avenue South, closed May 30, 2025 to prepare for demolition to make way for the new Community Health and Wellness Center (CHWC). 95% of Creekside’s current programming will be housed on an interim basis either at Bloomington Center for the Arts, 1800 W. Old Shakopee Road, or Logan Lodge, 9930 Logan Avenue South, featuring four unique programming spaces.
Continuing programs include but are not limited to card groups, fitness classes, needleworking, crafting programs, music groups, special events and educational seminars. These programs will transition to the new CHWC when it opens in 2027, alongside expanded offerings for older adults and new amenities.
For the remaining programs and activities requiring alternate arrangements, staff continue to identify and work through creative and engaging solutions, including:
Woodshop: Through an exciting partnership, Creekside woodshop users will have access to the woodshop facilities at the City of Eden Prairie’s Senior Center. The City of Bloomington will cover orientation and the first three months of use ($60 value) for those who participated at Creekside’s woodshop January 1 - June 1, 2025. After this period, standard fees apply.
Boutique: Working closely with senior leaders and volunteers, staff are creating new retail opportunities through movable kiosks and display cases at Civic Plaza and special events such as the Bloomington Farmers Market. These innovative solutions will continue at the new CHWC.
Lapidary: Acknowledging the importance of this unique craft, the City staff are actively exploring temporary locations and partnerships to keep the program thriving. A 2025 building analysis at Bloomington Center for the Arts will help determine a viable and permanent location.
Billiards & Table Tennis: The CHWC architectural team is assessing how to incorporate table games into the new facility. In the meantime, the City is working with community partners, including Bloomington Public Schools, to provide engaging alternative spaces for players. Table Tennis will take place at Substance Church-Southside Campus gym at 6820 Auto Club Rd. through a partnership and rental agreement with the City.
Food: In addition to programs for older adults, Creekside is home to the monthly Fare For All sale featuring name-brand food items at up to 40 percent off retail prices. City staff are investigating relocation options for the sale which is open to all with no income restrictions.
-
It will depend on the type of activity. Most city-run community centers have a mix of monthly and annual membership fees as well as daily and weekly passes for use of their fitness centers, pools and gymnasiums. To ensure accessibility, fees may include a sliding fee scale and variable pricing for programs depending upon a customer’s ability to pay. Generally, all of the fees in community centers go toward the cost of operations.
-
The CHWC project team provided 24 community engagement and public update opportunities between May 2024 and August 2025 in collaboration with the City’s Community Outreach and Engagement Division.
-
It is expected that the operating cost will be higher than the current Creekside and Public Health facilities since the new Community Health and Wellness Center will be three times larger than the existing buildings. To help plan for this, the project team is working with a consultant to build a detailed financial model (called a pro forma) that shows how much revenue will be needed to offset operating expenses. In 2024, the City asked residents what amenities the community desires in a Community Health and Wellness Center. This public input has shaped the design of the building and those refined amenities are now being used to estimate operating costs and better understand the value and benefits the new facility will provide to the community.
-
A feasibility study helps determine whether ideas for a new project are possible and make sense. PROS Consulting will conduct a feasibility study for the City to help us imagine what a new Community Health and Wellness Center will look like. They will gather input through meetings, surveys, and other methods to find out what residents want and need in the new center. They will also look for potential partners who might help make the center a success.
This preliminary study will kick off the community engagement process for facility design and will be updated as we move through additional community engagement and the design process in 2024 and 2025.
Here’s what the City and PROS Consulting will do during the feasibility study:
• We will analyze information about the people in the area, what other similar places are offering, how much money the center might make, and how many people might use the center.
• We will listen to what people in the community think. We'll gather opinions from residents, people who might use the center, leaders, and others through meetings, online comments and surveys. We will provide multiple opportunities for people to share their thoughts.
• We will identify the main programs and activities the center will offer.
• We will identify space requirements for core programs using the information we've gathered.
• We will produce a preliminary operational and financial plan to identify how the center will operate day to day. The plan will provide direction on operational standards, facility costs, hours of operation, maintenance, staffing levels, technology and customer service requirements, and potential partners.
• We will produce a preliminary pricing plan that explores how much to charge for programs and services, how to use the space efficiently, and overall financial planning.
-
The Community Health and Wellness Center project is pursuing a Leadership in Energy and Environmental Design (LEED) certification to surpass basic certification requirements by incorporating enhanced energy management, water efficiency strategies and sustainable materials, demonstrating commitment to environmental stewardship. The proposed CHWC plans do include solar panels.
-
Bloomington Public Health (blm.mn/public-health) provides health services to a population of nearly 180,000 residents across Bloomington, Richfield and Edina. Additionally, Public Health serves people who work in and visit these communities. This tri-city relationship has been in place for 48 years, since 1977.
Public Health administers and implements programs and services to address these foundational public health responsibilities:
Communicable disease control
Chronic disease and injury prevention
Environmental public health
Maternal, child and family health
Access to and linkage with clinical care
Staff serve everyone in the community with an emphasis on underserved populations. This includes individuals with less resources and those with functional or access needs. It also includes populations who have historically experienced health disparities due to structural racism, including immigrants and refugees, and individuals from our Black, Indigenous and People of Color (BIPOC) communities. For example, 86% of the clients of the Bloomington Women, Infants and Children (WIC) program in 2022 were from BIPOC communities.
Public Health remains committed to promoting, protecting and improving the health of all, with a focus on reducing health disparities and advancing racial equity.
-
No. Public health works on the prevention side of health; aiming to protect and improve the health of residents. Bloomington Public Health is not a traditional health care clinic in that it doesn’t treat acute illnesses or see sick individuals, and does not have a licensed physician on-site.
The services and work that happen from the Bloomington Public Health Center include:
Administration and operations – accounting, billing, grants and contracts coordination, communications, and more.
WIC (Women, Infants and Children) Supplemental Nutrition services such as height and weight checks, hemoglobin tests, and nutrition education.
Routine immunizations. Individuals are screened before their immunization; if they aren’t feeling well, staff reschedule their appointment.
Health education, such as pregnancy and prenatal classes for Family Health clients.
Bloomington Public Health is run by a team of motivated public health nurses, community health workers, public health professionals and support staff who promote its services and connect residents to community resources to support their overall health and well-being.
-
Yes. Ideally, some outdoor park elements will be included as part of the Community Health and Wellness Center campus.
Media & Resources
Learn more about Bloomington Forward.
-
-
Bloomington moves to next step in community center replacement - Sun Current, September 25, 2024
-
YouTube Playlists
Publications
-
February 25, 2026: CHWC Update
October 23, 2025: CHWC Groundbreaking!
October 13, 2025 City Council Update
September 25, 2025 Neighborhood Construction Meeting and Presentation
April 23, 2025 CHWC Project Update
April 14, 2025 City Council Update
February 24, 2025 City Council Update
Community Health and Wellness Center Celebration - September 2024
March 26, 2026 CHWC Update
February 25, 2026 CHWC Update
Contact Us
Do you have questions or comments? Email us at forward@bloomingtonmn.gov
Do you want to receive email updates about the Community Health and Wellness Center?
Sign up for E-Subscribe and select the Community Center Updates topic.